Vua Nệm – thương hiệu chăn ga gối đệm hàng đầu tại Việt Nam, tiếp tục tin tưởng lựa chọn Matrix Studio là đối tác trọn gói trong dự án Thiết kế và Thi công nội thất phòng livestream bán hàng chuyên nghiệp. Dự án này không chỉ là một không gian bán hàng mà còn là một studio đa năng, đáp ứng hoàn hảo nhu cầu Livestream, quay chụp sản phẩm và xây dựng hình ảnh thương hiệu.

🎯 Matrix Studio: Đối Tác Chiến Lược Cho Sự Phát Triển Của Vua Nệm

Sự hợp tác này là minh chứng rõ ràng cho chất lượng và sự chuyên nghiệp mà Matrix Studio mang lại, sau thành công của dự án Thiết kế và Thi công trọn gói Văn phòng kết hợp Showroom 700m2 tại 1 Đào Duy Anh, Hà Nội vào năm 2024.

Năm 2025, Matrix Studio tiếp tục được giao phó trách nhiệm kiến tạo Phòng Live Stream Vua Nệm – một không gian đóng vai trò then chốt trong chiến lược bán hàng và marketing số của thương hiệu.

I. Thiết Kế Phòng Livestream: Sáng Tạo Không Gian Đa Phong Cách

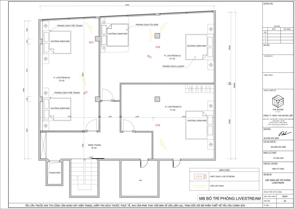
Với một thương hiệu lớn như Vua Nệm, thiết kế phòng livestream phải đảm bảo sự đa dạng, linh hoạt và tối ưu hóa trải nghiệm người xem. Dựa trên bản vẽ bố trí mặt bằng, Matrix Studio đã chia không gian thành nhiều khu vực chuyên biệt, mỗi khu vực mang một phong cách riêng biệt để phù hợp với nhiều dòng sản phẩm và nội dung Livestream khác nhau:

1. Phong cách sang trọng – Phòng Luxury & Tối Giản
-
Đặc điểm: Sử dụng tông màu trầm ấm, vật liệu cao cấp như vách ốp sóng dọc, sàn gỗ xương cá sang trọng, và ánh sáng vàng dịu nhẹ.
-
Mục đích: Tạo phông nền hoàn hảo để giới thiệu các dòng nệm và chăn ga gối đệm cao cấp, định vị thương hiệu đẳng cấp.
2. Phong cách trẻ trung – Phòng Cá Tính & Hiện Đại

-
Đặc điểm: Sử dụng tông màu xanh-trắng tươi sáng, hình khối cong, và kệ trưng bày sản phẩm mở.
-
Mục đích: Phù hợp với nội dung tương tác, các phiên Livestream hướng đến giới trẻ hoặc các sản phẩm có tính năng đặc biệt.

3. Phong cách tự nhiên – Phòng Tối Giản & Thiền Định
-
Đặc điểm: Tông màu beige/nude, nội thất gỗ mộc, gương decor nghệ thuật, và cây xanh.
-
Mục đích: Nhấn mạnh sự thư giãn, chất liệu tự nhiên, lý tưởng cho việc quảng bá các sản phẩm chăm sóc giấc ngủ.
II. Thi Công Nội Thất Phòng Live Stream: Tối Ưu Hóa Công Năng Kỹ Thuật

- Thi công nội thất phòng live stream đòi hỏi sự tỉ mỉ không chỉ về thẩm mỹ mà còn về hệ thống kỹ thuật. Matrix Studio đã tập trung vào các yếu tố quan trọng sau:
- Hệ thống chiếu sáng chuyên nghiệp:
Sử dụng đèn rọi ray (track lighting) linh hoạt cùng đèn trần tán quang công suất lớn, đảm bảo ánh sáng đồng đều và chất lượng cao cho camera.
- Bố trí đèn hắt sáng (LED hắt) viền tường và trần để tạo chiều sâu và không gian 3D cho hình ảnh.
Khu vực Livestream luôn được trang bị thêm đèn Ring Light chuyên dụng trên chân đứng, đảm bảo chất lượng video tối ưu.
-
Linh hoạt và Di động: Thiết kế các khu vực có thể dễ dàng thay đổi bối cảnh, phù hợp với yêu cầu của các chương trình Livestream khác nhau.
-
Vật liệu và Hoàn thiện: Sử dụng các vật liệu dễ dàng vệ sinh, bền bỉ và có khả năng chống ồn (như vách ốp nỉ, vách ốp sóng) để nâng cao chất lượng âm thanh và hình ảnh.
🔑 Lời ngỏ
Dự án Thiết kế và Thi công nội thất phòng live stream cho Vua Nệm không chỉ khẳng định năng lực vượt trội của Matrix Studio mà còn là lời giải cho bài toán làm thế nào để biến không gian bán hàng thành một Studio chuyên nghiệp, linh hoạt và hiệu quả.
Bạn đang tìm kiếm đối tác để thiết kế phòng livestream hay thi công nội thất phòng live stream trọn gói? Hãy liên hệ ngay với Matrix Studio để biến ý tưởng kinh doanh của bạn thành hiện thực với không gian Livestream đẳng cấp và tối ưu nhất!
———————
Matrix Studio là NHÀ THẦU THIẾT KẾ THI CÔNG NỘI THẤT có năng lực Thiết kế kiến trúc Thiết kế nội thất
Thi công nội thất công trình:
Biệt thự,
Nhà phố,
Căn hộ,
Văn phòng…với bề dày kinh nghiệm và uy tín trên15 năm tại Việt Nam


