TỐI ƯU HÓA KHÔNG GIAN NHÀ PHỐ LÊ VĂN LƯƠNG – PA CẢI TẠO TỪ MATRIX DESIGN & BUILD
Vị trí: Hà Nội - Hà Nội
Loại công trình: Nhà phố
Diện tích: 120m2
Trong nhịp sống hối hả của thủ đô, một ngôi nhà không chỉ là nơi để về, mà còn là bản tuyên ngôn về phong cách sống và sự tiện nghi. Vừa qua, Matrix Design & Build đã hoàn thiện dự án thiết kế và thi công cải tạo nội thất tầng 3 & tầng 4 cho gia đình Mr. Trường tại Lê Văn Lương, Hà Nội.
Với đặc thù mặt bằng có những góc chéo góc cạnh, đội ngũ kiến trúc sư của Matrix đã đưa ra những giải pháp “may đo” hoàn hảo, biến nhược điểm không gian thành điểm nhấn kiến trúc đầy ấn tượng.
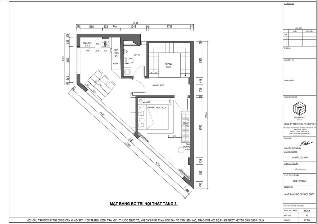
1. Tầng 3: Sự Sang Trọng Hiện Đại Trong Không Gian Bếp & Nghỉ Ngơi

Mặt bằng tầng 3 được phân chia thông minh để tối ưu hóa công năng sinh hoạt chung và riêng.
-
Phòng Bếp & Ăn: Sử dụng tông màu đen – trắng đối lập đầy quyền lực. Hệ tủ bếp kịch trần kết hợp cánh kính và đèn LED thanh lịch không chỉ mở rộng không gian lưu trữ mà còn tạo chiều sâu cho căn phòng. Điểm đặc biệt là hệ cửa sổ lớn với rèm sáo nhôm giúp gia chủ kiểm soát ánh sáng tuyệt vời.

-
Phòng Ngủ Master: Được bố trí tinh gọn nhưng vẫn đảm bảo sự riêng tư và tiện nghi với hệ tủ quần áo tích hợp bàn trang điểm, giúp tận dụng tối đa các góc chết của diện tích hình thang.

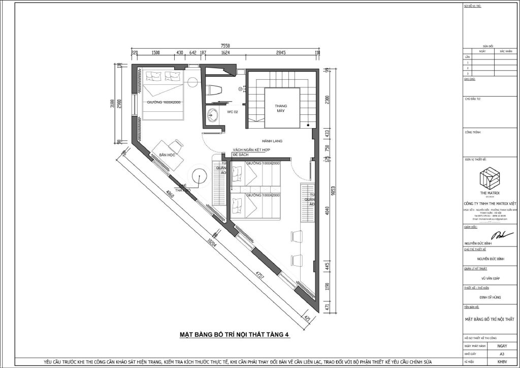
2. Tầng 4: Không Gian Sáng Tạo Cho Thế Hệ Trẻ
Tầng 4 là sự kết hợp giữa phòng ngủ trẻ em và khu vực học tập chuyên biệt.

-
Thiết kế thông minh cho trẻ: Với các tông màu trung tính như xám, xanh pastel điểm xuyết sắc vàng năng động của ghế làm việc, căn phòng mang đến nguồn năng lượng tích cực.

-
Giải pháp lưu trữ: Hệ tủ âm tường và kệ sách treo được tính toán kỹ lưỡng, giúp không gian luôn gọn gàng dù diện tích phòng có nhiều góc vát đặc thù.
-
Góc học tập lý tưởng: Tận dụng tối đa ánh sáng tự nhiên từ hệ thống cửa sổ vòm lớn, tạo cảm hứng học tập và nghiên cứu tối đa.
3. Matrix Design & Build – Đơn Vị Thực Hiện Trọn Gói
Dự án của Mr. Trường là minh chứng cho năng lực Thiết kế & Thi công trọn gói của Matrix Design & Build:
-
Cá nhân hóa thiết kế: Lắng nghe và hiện thực hóa ý tưởng của chủ đầu tư trên mọi địa hình mặt bằng khó.
-
Chất lượng thi công: Chuẩn xác từ bản vẽ kỹ thuật đến thực tế, cam kết sử dụng vật liệu cao cấp và bền bỉ.
-
Thẩm mỹ tinh tế: Sự kết hợp hài hòa giữa ánh sáng, màu sắc và công năng.
THÔNG TIN DỰ ÁN:
-
Chủ đầu tư: Mr. Trường
-
Địa điểm: Lê Văn Lương, Hà Nội
-
Hạng mục: Cải tạo nội thất trọn gói Tầng 3 & Tầng 4
-
Đơn vị thực hiện: Matrix Design & Build
Bạn đang sở hữu một không gian khó thiết kế? Đừng ngần ngại liên hệ với Matrix Design & Build để nhận giải pháp tối ưu nhất cho ngôi nhà của bạn!
Matrix Studio là NHÀ THẦU THIẾT KẾ THI CÔNG NỘI THẤT có năng lực Thiết kế kiến trúc
Thiết kế nội thất
Thi công nội thất công trình:
Biệt thự,
Nhà phố,
Căn hộ,
Văn phòng…với bề dày kinh nghiệm và uy tín trên15 năm tại Việt Nam
𝗧𝗛𝗘 𝗠𝗔𝗧𝗥𝗜𝗫 𝗦𝗧𝗨𝗗𝗜𝗢 – Tổng thầu thiết kế thi công nội thấtĐịa Chỉ: Số 9, Nguyễn Xiển, Thanh Xuân, Hà Nội.
Liên Hệ: 0973 379 011 – 0848 160 889


