Thiết Kế & Thi Công Nội Thất Văn Phòng Ecomar – Matrix Studio

Vị trí: Hà Nội - Hà Nội

Loại công trình: Văn phòng

Diện tích: 124m2

Một văn phòng lý tưởng không chỉ là nơi đặt những chiếc bàn làm việc, mà là nơi văn hóa doanh nghiệp được “thở”, nơi năng lượng sáng tạo được kích hoạt mỗi ngày. Với dự án thiết kế và thi công nội thất văn phòng công ty Ecomar, Matrix Studio đã hiện thực hóa một không gian làm việc hiện đại, chuyên nghiệp nhưng vẫn đầy ắp sự kết nối và năng lượng tích cực.

Thông tin dự án:

  • Chủ đầu tư: Công ty Ecomar

  • Hạng mục: Thiết kế và Thi công nội thất văn phòng trọn gói

  • Đơn vị thực hiện: Matrix Studio (Design & Build)

  • Phong cách chủ đạo: Modern Office (Hiện đại) & Eco-friendly (Thân thiện môi trường)

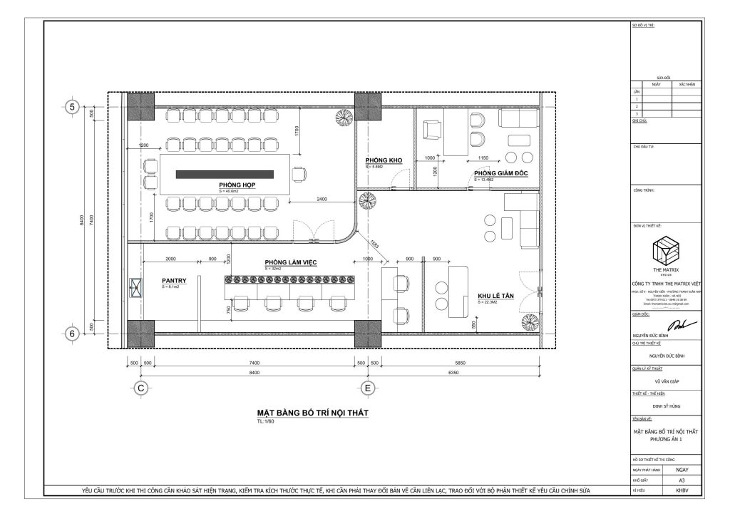
Chi tiết thiết kế và bố trí mặt bằng:

Dựa trên nhu cầu sử dụng thực tế và diện tích mặt bằng, các kiến trúc sư của Matrix Studio đã đưa ra giải pháp quy hoạch không gian thông minh, bao gồm các phân khu chức năng:

1. Khu vực Sảnh & Lễ tân (Reception):

  • Thiết kế: Sử dụng hệ vách nan gỗ ốp tường tạo chiều sâu và sự sang trọng. Quầy lễ tân bo cong mềm mại, tích hợp đèn LED hắt sáng hiện đại.

  • Điểm nhấn: Logo Ecomar nổi bật trên nền vách gỗ, kết hợp cùng sofa chờ êm ái, tạo ấn tượng chuyên nghiệp cho đối tác ngay từ lần đầu ghé thăm.

2. Phòng làm việc nhân viên (Open Office):

  • Bố trí: Hệ bàn cụm (module) chạy dài giúp tối ưu diện tích sàn.

  • Vật liệu: Bàn gỗ công nghiệp sáng màu, chân sắt sơn tĩnh điện bền bỉ.

  • Giải pháp xanh: Tích hợp bồn cây xanh trên vách ngăn lửng giữa các bàn, mang thiên nhiên vào môi trường công sở.

  • Trần & Sàn: Sử dụng trần thả tiêu âm và thảm trải sàn dạng tấm (carpet tiles) giúp giảm tiếng ồn, tạo không gian yên tĩnh cần thiết.

3. Phòng họp (Meeting Room):

  • Trang bị bàn họp lớn hình chữ nhật bo góc, tích hợp hộp kỹ thuật điện/mạng âm bàn.

  • Hệ vách kính ngăn chia không gian giúp tận dụng ánh sáng tự nhiên từ khu vực làm việc chung nhưng vẫn đảm bảo sự biệt lập.

4. Phòng Giám đốc & Các khu vực phụ trợ:

  • Phòng Giám đốc: Được bố trí ở vị trí có tầm nhìn bao quát nhưng kín đáo, nội thất đề cao sự uy quyền và tiện nghi.

  • Pantry: Thiết kế gọn gàng với tủ bếp trên dưới, đầy đủ tiện nghi (tủ lạnh, máy pha chế), là nơi thư giãn lý tưởng.

Tại sao chọn Matrix Studio? Qua dự án Ecomar, Matrix Studio khẳng định năng lực trong việc xử lý không gian, phối trộn vật liệu và màu sắc (Trắng – Gỗ – Xanh thương hiệu) để tạo nên một tổng thể hài hòa. Chúng tôi không chỉ xây dựng văn phòng, chúng tôi xây dựng môi trường để doanh nghiệp phát triển bền vững.