Thiết Kế Phòng Khám Kính Mắt Dr. Nguyễn Optic
Vị trí: Hà Nội - Hà Nội
Loại công trình: Phòng khám & Showroom
Diện tích: 220m2
Phương án thiết kế nội thất cho Dr Nguyen Optic từ đơn vị Matrix Design & Build là một sự kết hợp hài hòa giữa yếu tố sang trọng của một showroom thời trang và sự chuyên nghiệp của một cơ sở y tế.
1. Phong cách thiết kế & Màu sắc
-
Phong cách: Hiện đại (Modern), sang trọng và tinh tế. Việc sử dụng các đường bo cong (tại quầy lễ tân, kệ trưng bày trung tâm) tạo cảm giác mềm mại, thân thiện.
-
Tông màu chủ đạo: Sử dụng màu gỗ tự nhiên ấm áp phối cùng màu trắng sứ và xanh dương đậm (màu nhận diện thương hiệu). Sự kết hợp này mang lại cảm giác vừa tin cậy (y tế), vừa cao cấp (thời trang).
-
Vật liệu: Sự xuất hiện của các chi tiết kim loại mạ vàng trên giá kệ, mặt đá vân mây và hệ thống đèn LED âm tủ làm tăng giá trị cho sản phẩm kính mắt trưng bày.

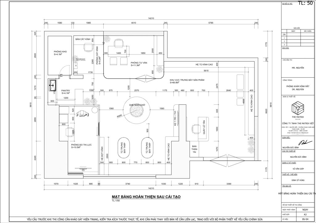
2. Phân khu chức năng
Mặt bằng được phân chia rất khoa học, đảm bảo luồng di chuyển thuận tiện:
-
Khu vực Showroom: Chiếm diện tích lớn phía trước với hệ kệ sát tường và các “đảo” kính trưng bày trung tâm. Các thương hiệu lớn (Chopard, Gucci, Cartier…) được phân khu rõ ràng, có bảng tên chuyên nghiệp.

-
Khu vực Chờ & Thư giãn: Điểm nhấn là cây xanh và giếng trời nhân tạo (skylight) hình tròn ở giữa phòng. Đây là một ý tưởng tuyệt vời giúp giải tỏa áp lực tâm lý cho bệnh nhân khi chờ khám.
-
Phòng Đo thị lực (Room Measurement): Được thiết kế tách biệt bằng cửa kính mờ, đảm bảo sự riêng tư và tiêu chuẩn về ánh sáng để thực hiện các bài kiểm tra thị lực chính xác.
-
Phòng Tư vấn: Sử dụng vách kính trong suốt giúp không gian thông thoáng nhưng vẫn phân định rõ khu vực chuyên môn.

3. Ánh sáng & Trưng bày
-
Ánh sáng tập trung: Hệ thống đèn ray (track lighting) và đèn LED bên trong các hộc tủ giúp sản phẩm kính mắt trở nên lung linh, nổi bật các chi tiết gọng kính.
-
Màn hình kỹ thuật số: Việc tích hợp các màn hình lớn trình chiếu clip quảng cáo giúp không gian trở nên năng động và hiện đại hơn.

4. Điểm nhấn đặc biệt
Cảm giác “Zen” giữa không gian công nghiệp: Chiếc ghế sofa tròn bao quanh gốc cây ngay dưới vòng tròn ánh sáng là một chi tiết đắt giá. Nó biến một phòng khám mắt khô khan thành một không gian nghỉ ngơi, tạo trải nghiệm khách hàng cao cấp

Ưu điểm:
-
Nhận diện thương hiệu cực tốt (Logo và màu sắc xuất hiện đồng nhất).
-
Cân bằng hoàn hảo giữa tính thương mại (bán kính mắt) và tính chuyên môn (khám mắt).
-
Thẩm mỹ hiện đại, bắt kịp xu hướng thiết kế nội thất y tế cao cấp hiện nay.
———————————–
Matrix Design & Build là NHÀ THẦU THIẾT KẾ THI CÔNG NỘI THẤT có năng lực Thiết kế kiến trúc Thiết kế nội thất – Thi công nội thất công trình: Biệt thự, Nhà phố, Căn hộ, Văn phòng…với bề dày kinh nghiệm và uy tín trên15 năm tại Việt Nam
𝗧𝗛𝗘 𝗠𝗔𝗧𝗥𝗜𝗫 𝗦𝗧𝗨𝗗𝗜𝗢 – Tổng thầu thiết kế thi công nội thất
Địa Chỉ: Số 9, Nguyễn Xiển, Thanh Xuân, Hà Nội.
Liên Hệ: 0973 379 011 – 0848 160 889


